Jedinečná investičná príležitosť v oblasti nehnuteľností
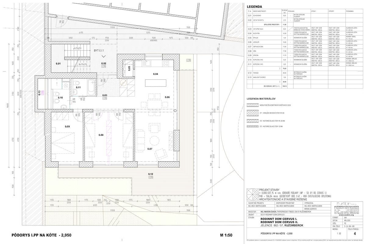
Budujeme jedinečnú viacjednotkovú nehnuteľnosť pozostávajúcu z dvoch samostatných komplexov, CERVUS I. a II. Každý komplex je trojposchodová budova, pričom každé poschodie obsahuje jeden priestranný apartmán. Tento inovatívny dizajn zaručuje bezkonkurenčný komfort a súkromie vďaka eliminácii spoločných chodieb a poskytovaniu exkluzívnych vchodov. Výraznou črtou každého apartmánu je súkromná terasa, ktorá sa rozprestiera po celom obvode, od východu na juh, ponúka rozsiahle výhľady a plynulé prepojenie interiéru s exteriérom.
Naša misia
Poskytovať rezidentom výnimočný zážitok z bývania. Staviame inovatívne komplexy, ktoré spájajú pohodlie a priestor súkromného domu s výhodami bývania v apartmáne.
Lokalita projektu
Naša nehnuteľnosť je strategicky umiestnenáadrese s vynikajúcim prístupom a miestnou občianskou vybavenosťou.
Strategické umiestnenie na trhu
Náš projekt sa nachádza v prémiovej lokalite so silnými trhovými základmi, čo zaručuje vysoký dopyt a dlhodobú hodnotu.
Prémiová lokalita
Nachádza sa regióne Liptov, Ružomberok, mestská časť Baničné. To zaisťuje stály prúd vysokokvalitných nájomníkov alebo kupujúcich, ktorí hľadajú výhody životného štýlu v tejto vyhľadávanej oblasti.
Vysoký dopyt
Miestny trh vykazuje extrémne nízke miery neobsadenosti pre novo zrekonštruované nehnuteľnosti so súkromným bývaním. Náš jedinečný dizajn priamo spĺňa dopyt po izolovanejších, pohodlnejších obytných priestoroch.
Cieľový trh
Ideálne pre mladých profesionálov, páry a malé rodiny, ktoré hľadajú moderné vybavenie v kombinácii so súkromím, ktoré sa zvyčajne nachádza v rodinných domoch.
Náš štvorstupňový plán budovania
Jasná a efektívna cesta od akvizície k ziskovosti.
Akvizícia
2024
Získanie nehnuteľnosti za konkurencieschopnú, vopred preverenú cenu.
Povolenia
Q1 2025 - Q1 2026
Vyhotovenie stavebného projektu a získanie všetkých potrebných povolení na budovanie.
Výstavba
Q2 2026 - Q3 2027
Realizácia stavby so zameraním na vysokokvalitné materiály a úpravy.
Výstupná stratégia
Q4 2027
Predať nehnuteľnosť so ziskom, alebo prenajímať jednotky a držať nehnuteľnosť.
Financie a investičná ponuka
Transparentný pohľad na čísla a vaša príležitosť získať garantovaný výnos.
Rozdelenie predpokladaných nákladov
Vaša investícia, Váš výnos
Poznámka: Úroková sadzba je predmetom jednania a dohody.
Ponúkame **6,9% garantovanú úrokovú sadzbu** počas 1-ročného obdobia. Použite kalkulačku nižšie, aby ste videli svoje potenciálne zárobky.
Váš 6,9% výnos (1 rok)
€6,900
Celková výplata
€106,900
Celkové predpokladané náklady
€1,850,000
Predpokladaný celkový zisk
€555,000
Predpokladaná ROI
30%
Náš tím
Skúsení profesionáli, ktorí sa venujú dosahovaniu najlepších výsledkov v oblasti riadenia hotelového priemyslu a rozvoja nehnuteľností.
PENZIÓN EMÍLIA, s.r.o. a R-NEST, s.r.o.
Hlavný developer
Viac ako 10 rokov skúseností v oblasti budovania nehnuteľností, projektového manažmentu a finančného dohľadu.
Advokátska a správcovská kancelária
Advokátske služby
Advokát zapísaný v zozname advokátov Slovenskej advokátskej komory a správca zapísaný v zozname správcov Ministerstva spravodlivosti Slovenskej republiky.
ZUSKIN, s.r.o. a KONTRAKTING, s.r.o.
Hlavný dodávateľ
Licencovaný dodávateľ s preukázanými výsledkami v dodávaní vysokokvalitných projektov včas a v rámci rozpočtu.






